間取り変更
- 友枝 昌二
- リノベーション
今回は間取り変更リフォームに関してお話致します。
今回は「ご実家にご家族4人で同居されるための間取り変更リフォーム」
をご依頼いただいたお宅の事例をご紹介します。
ご相談いただいたのは、ご夫婦と小学生のお子さま2人の4人家族。
これまで賃貸にお住まいでしたが、ご実家で親世帯と同居することになり、
戸建てを家族全員が快適に暮らせるようにリフォームしたい、とのことでした。
ポイントは以下の3つです。
1つ目は「プライバシーの確保」。
2つ目は「生活動線の見直し」。
そして3つ目は、「将来のライフスタイルの変化に対応できる柔軟な間取り」です。
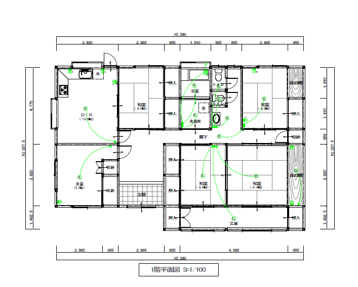
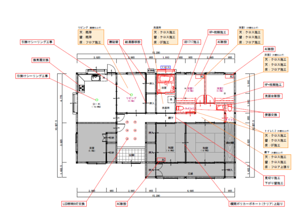
まず、間取りの大きな変更として、狭くて使いづらいトイレ配置を変更することで、
今後の生活動線として使いやすくする事、和室の空間を改修し子供部屋を2部屋作り、
お子様の成長にあわせ、プライベート空間を作ってあげる。
これにより、生活時間帯の違いや音の問題にも配慮。
お風呂もシステムバスにし、冬場の寒さ対策の為断熱仕様、
脱衣所のスペースに化粧台と洗濯機を新設、給排水管も全て替えました。
このように、二世帯が心地よく共に暮らすには「距離感」と「共有」がカギになります。
単なる空間の分け方だけではなく、家族それぞれの暮らし方を丁寧にヒアリングし、
将来を見据えた間取りへとリフォームすることがとても重要です。


「ただ一緒に住む」だけでなく、「みんなが心地よく住み続けられる家」にするための間取り変更。
ご家族にも大変ご満足いただけました。
これからも、世代を超えて暮らしがつながる家づくりのお手伝いをしていきたいと思います。
パワーハウスの施工事例は→こちらから

少しでもご不満、ご不安を解消できるようご提案させて頂きます。