福岡市東区Y様邸 中古物件+リノベーション|家事も育児も快適に!回遊動線と造作にこだわった理想の住まい
家族のこれからを描く自由設計の住まいづくり
【ジェルコ2025九州支部リフォームコンテスト 優秀賞 受賞事例】
「長く暮らすからには、家族全員がストレスなく過ごせる住まいにしたい」 。
そんなYさん夫妻の想いを形にしたのは、家事効率を極めた回遊動線と、細部までこだわり抜いた造作家具が光るリノベーションです。
施工内容
マンションリノベーション
使用商材・建材
〔キッチン〕トクラス:コラージア
〔洗面化粧台〕造作(ボウル:カクダイ)
〔浴室〕TOTO:マンションリモデルWYシリーズ
〔トイレ〕TOTO:ネオレスト
施工前図面
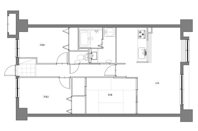
施工後図面
■お客様のお悩み■
第二子を授かったことを機に、新しい住まいを考え始められたYさま。
出産までの限られた時間の中で、安心して任せられるリノベーションを希望されていました
共働きで忙しい日々を送る中、効率よく家事を進めるため、行き止まりのない「回遊性」のある間取りは絶対条件でした
お料理好きな奥様のこだわりを反映した使い勝手の良さと、将来を見据えた「段差のないフラットな住まい」を強く希望されていました
□解決策のご提案□
毎日の家事が少しでもラクになるよう、洗面所~キッチン~ダイニングとスムーズに行き来できる家事動線をつくりました。
水まわりの位置自体は変えず、キッチンの向きを変更
キッチンと洗面所を直接つなぐ扉を新たに設けたことで、家の中をぐるりと回れる回遊動線を実現しました。
既製品に頼らず、奥様の「気分が上がる」キッチンの造作棚や洗面台収納を設計し、理想の使い勝手を追求しました
また、家中から段差をなくし、小さなお子様の安全と将来の暮らしやすさを両立させたフラットな空間を提案しました
リフォーム全体の概要
| 工期 | 2ヵ月 |
|---|---|
| 住所 | 福岡市東区 |
| 築年数 | 29年 |
| 費用総額 | 1,200万円(税込) |
キッチンを中心に回遊できる動線と、飾り棚や照明の演出が心地よさを添えます。
家族を見守るスタイリッシュな対面キッチン
木のぬくもりを感じるカウンターに、使い勝手に合わせた収納を組み合わせた完全オリジナルの造作洗面台。
毎朝の身支度が楽しみになる空間です。
浴室はTOTO マンションリモデルWYシリーズ。
石目調のパネルが高級感を演出し、日々の疲れを癒やす心地よいバスルームへと生まれ変わりました。
TOTOの最高級モデル「ネオレスト」を採用しました。
タンクがないため空間がすっきりとし、凹凸の少ないデザインでお掃除のしやすさが劇的に向上しています。
落ち着いたグレー系のアクセントクロスと、質感にこだわったフロアタイルを組み合わせ、まるでホテルのような洗練された空間を演出しました。
ぬくもり溢れる、家族のくつろぎ空間
寝室
子ども部屋
ファミリークローゼット
造作
リビングからの光が差し込むよう、廊下の突き当たりにはスリット入りの扉を採用。
白を基調とした壁紙と明るい木目のフローリングにより、暗くなりがちなマンションの廊下をパッと明るい印象へと刷新しました。
お客様の声
Q.リノベーションを検討されたきっかけは何ですか?
第二子を授かったことが大きな転換点でした
以前から住み慣れたこの街に愛着があり、通勤や子育ての利便性も気に入っていたんです
最初は戸建ても検討しましたが、予算や画一的なプランへの不安があり、「もっと自分たちらしい自由な暮らしを叶えたい」と考えて、中古マンションを購入してフルリノベーションすることを選びました
Q.パワーハウスを選んだ理由を教えてください。
SNSで見かけて気になっていたのですが、実際に三苫店に足を運び、担当者の方と対話する中で信頼が確信に変わりました
モデルルームのセンスの良さはもちろん、出産までの限られた時間の中で2案を迅速に提示してくれる対応力、そして私たちの要望に寄り添う提案力と知識の豊富さが決め手でしたね
Q.間取りやデザインで特にこだわったポイントは?
一番の条件は、行き止まりのない「回遊性」のある動線でした
共働きで育児も重なるため、家事効率を極めたかったんです
また、料理が好きなので、お気に入りの鍋を飾れる造作棚を作ったり、使いやすくて気分が上がるキッチンを目指しました
仕事柄、多くのお宅を見てきた経験から、将来を見据えて住まい全体を「段差のないフラットな設計」にすることにもこだわりました
Q.実際に暮らしてみての感想はいかがですか?
回遊できる間取りにしたことで家事と育児が劇的にしやすくなり、自分たちの「時間の余裕」が生まれたことを実感しています
リビング横の和のスペースは、子どもを寝かせたり遊ばせたりするのにぴったりですね
子どもも「今日も新しいお家に帰るの?」と毎日喜んでいます
私たちの希望を丁寧に汲み取って形にしてくれたパワーハウスさんにお任せして、本当に良かったです
リノベーション
キッチン
家族を見守るスタイリッシュな対面キッチン
洗面所
お風呂
トイレ
和室
ぬくもり溢れる、家族のくつろぎ空間
内装
寝室
内装
子ども部屋
その他
ファミリークローゼット
その他
造作
玄関
担当したスタッフ
無事出産前に完成し私共も安堵しました。
完成後は私共スタッフにお礼の品まで頂き大変感激しました。
吉野様の優しさを反映したような温かみのあるデザインのリノベーションになったかと思います。
パン作りやお料理がお好きな奥様のために、使い勝手の良いキッチン空間を特にこだわって設計しました。
毎日の家事が少しでもラクになるようにと洗面所~キッチン~ダイニングと家事動線も工夫しています。
Y様ご家族皆さまが笑顔で過ごせる空間となれば嬉しいです。




担当者からお客様へ
無事出産前に完成し私共も安堵しました。
完成後は私共スタッフにお礼の品まで頂き大変感激しました。
吉野様の優しさを反映したような温かみのあるデザインのリノベーションになったかと思います。 (担当:大茂 康信)
パン作りやお料理がお好きな奥様のために、使い勝手の良いキッチン空間を特にこだわって設計しました。
毎日の家事が少しでもラクになるようにと洗面所~キッチン~ダイニングと家事動線も工夫しています。
Y様ご家族皆さまが笑顔で過ごせる空間となれば嬉しいです。 (担当:波多江 彩)