福岡市早良区M様邸 築39年マンションリノベーション|収納充実!インテリアが映える住まい
収納充実&デザイン性アップ。暮らしを変えるマンションリノベ
【ジェルコ2025九州支部リフォームコンテスト 優秀賞 受賞事例】
中古物件を購入してリノベーション。
ご家族とともに紡ぐ、新しい住まいが完成しました。
施工内容
マンションリノベーション
使用商材・建材
〔キッチン〕クリナップ:ステディア
〔洗面化粧台〕TOTO:オクターブ
〔浴室〕TOTO:WYシリーズ
〔トイレ〕TOTO:ピュアレストEX
〔間仕切り建具〕大和建装:アルテッドシステム
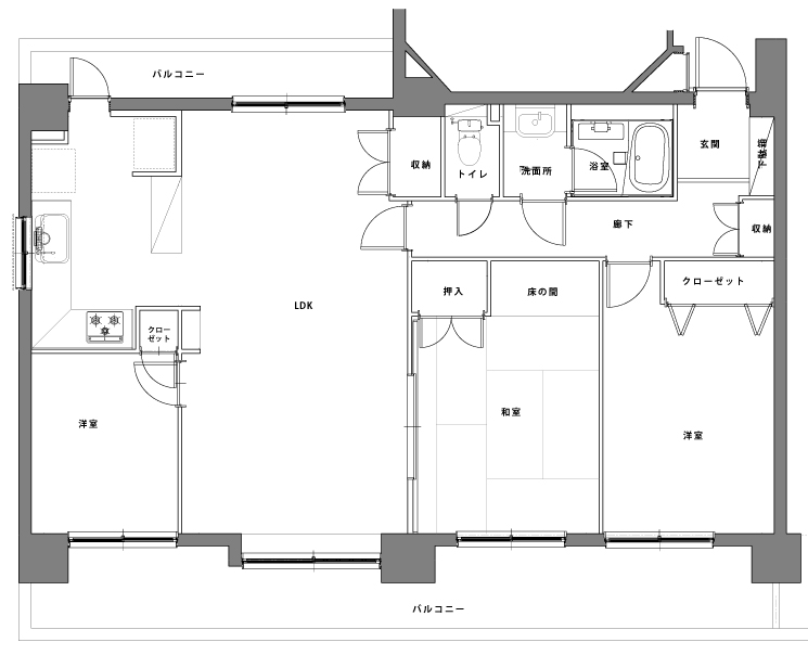
施工前図面
施工後図面
■お客様のお悩み■
住み替えを機にリノベーションを決められたMさま。
購入したマンションは築年数が古く間取りが細かく区切られていて、家族3人には使いづらい状態。
洗面所や浴室も狭く、収納スペースが足りないことが大きな悩みでした。
さらに、間接照明やインテリアにもこだわり、好きなデザインに囲まれた暮らしを実現したいという想いも。
□解決策のご提案□
家族で過ごす時間の長いリビングは、窓の多い南向きに配置し、風と光が心地よくめぐる住まいに。
キッチンは対面式へ、洗面台や浴室もサイズアップして広々とした空間を確保。
壊せない構造体を壁の位置を調整して圧迫感が出ないよう工夫しました。
さらに動線計画と十分な収納で、生活感を抑えたすっきりとした暮らしを実現しました。
リフォーム全体の概要
| 工期 | 2か月 |
|---|---|
| 住所 | 福岡市早良区 |
| 築年数 | 39年 |
| 費用総額 | 1,700万円(税込) |
リビングダイニングに個室と独立型キッチンを取り込んだLDK。
家族の様子を見守りながら料理ができるよう、対面キッチンを採用。
キッチン前にはカウンターを造作し、リビング周りのものを収納してスッキリと片づけられるようにしました。
リノベ後は洗濯機が置けるスペースに拡大。
調湿効果のある壁紙を選んでジメジメ対策も。
浴室はTOTOの「WYシリーズ」をセレクト。
ベージュの石目調アクセントパネルがやさしい雰囲気をつくり、心からリラックスできる空間に。
足を伸ばしてゆったり入れる広々とした浴槽も魅力です。
グレー×木でまとめたやさしい空間。
丸い鏡やペンダントライトがアクセントとなり、上質な雰囲気を演出しています。
個室
フリースペース
大和建装の間仕切り建具で、LDKをゆるやかに仕切れるように。
普段は広々と開放的に使え、必要に応じて仕切ればエアコン効率の向上や急な来客時の目隠し、プライバシーの確保にも役立ちます。
光を取り入れるパネルが、閉めても明るく閉塞感のない空間をつくります。
リビングのテレビ背面にはエコカラットを施工。
デザイン性はもちろん、調湿・消臭といった機能性にも優れたタイルです。
間接照明に照らされたエコカラットが、空間にラグジュアリーな雰囲気を添えています。
収納
廊下
玄関は浴室と洗面所を広げた分狭くなったが、土間玄関に変更し、靴箱を浮かせて間接照明を設けたことで奥行や広がりを感じます。
お客様の声
住み替えのタイミングで中古マンションを購入しリノベーションをすることにしました。
購入したこのマンションは築年数が古く間取りが細かく区切られていて、家族3人には使いづらい状態。
洗面所や浴室も狭く、収納スペースが足りないことが大きな悩みでした。
さらに、段差や柱・梁による圧迫感もあり、快適に暮らすためには大きな間取り変更が必要だと感じていました。
複数社で検討しましたが、パワーハウスさんは提案内容がわかりやすく、納得できる金額とパースを提示していただき、何より担当の大茂さんと森田さんの人柄に惹かれました。
リフォーム相談会後、別のイベントでお会いした際、私たちのことを覚えていてくれたことや、同じ鹿児島出身という共通点で話が弾んだことも決め手になりました。
リノベーション後は、開放的なLDKと収納力のある間取りに大満足です。
洗面所や浴室も広くなり、家族で快適に過ごしています。
細部まで配慮された設計で、段差や柱の工夫もあり、暮らしやすさが格段に向上しました。
リノベーション
キッチン
洗面所
お風呂
トイレ
内装
個室
内装
フリースペース
建具
壁工事
その他
収納
その他
廊下
玄関
担当したスタッフ
数か月後、パワーハウスの南店オープンの時に来場していただき、物件が決まったとお聞きしました。
その後トントン拍子でお話が進みご主人が色々調べていただいたメーカーに一緒にまわり私も大変勉強になりました。
収納を増やしたり、間接照明やオーダー家具を造作しましたが、私が気に入っているところは玄関です。
扉を開けると人感センサーの照明が下駄箱と長い土間を照らし、ホテルに来たかのような空間に仕上がりました。
目指したのは、生活感を感じさせない広々としたLDKと、愛用品をすっきりと仕舞える充実した収納計画です。
さらに、ご主人様がこだわりの配線計画やインテリアをコーディネートしていただき、ご家族が毎日を心地よく過ごせる、上質な空間が完成しました。



担当者からお客様へ
数か月後、パワーハウスの南店オープンの時に来場していただき、物件が決まったとお聞きしました。
その後トントン拍子でお話が進みご主人が色々調べていただいたメーカーに一緒にまわり私も大変勉強になりました。
収納を増やしたり、間接照明やオーダー家具を造作しましたが、私が気に入っているところは玄関です。
扉を開けると人感センサーの照明が下駄箱と長い土間を照らし、ホテルに来たかのような空間に仕上がりました。 (担当:大茂 康信)
目指したのは、生活感を感じさせない広々としたLDKと、愛用品をすっきりと仕舞える充実した収納計画です。
さらに、ご主人様がこだわりの配線計画やインテリアをコーディネートしていただき、ご家族が毎日を心地よく過ごせる、上質な空間が完成しました。 (担当:森田 千春)