福岡市南区 リゾートヴィラスタイル マンションリノベーション施工事例
ふんだんな木目の南国リゾートスタイル。
家にいながら、旅を感じる暮らし
築37年の物件がラグジュアリーなリゾートスタイルに!
家事動線にもこだわり、見た目だけでなく機能的な面からも、くつろげる我が家になりました。
施工内容
マンションリノベーション
使用商材・建材
〔キッチン〕クリナップ:ラクエラ
〔洗面台〕クリナップ:エルヴィータ
〔浴室〕TOTO:サザナ
〔トイレ〕Panasonic:アラウーノ
リフォーム全体の概要
| 工期 | 2ヵ月 |
|---|---|
| 住所 | 福岡市南区 |
| 築年数 | 37年 |
リノベーション
キッチン
独立していたキッチンをリビングの中に移し、空間の主役に。
洗面所
洗面台はクリナップのエルヴィータ。
丸い鏡が可愛さをプラス。
お風呂
TOTOサザナの『お掃除らくらくカウンター』は、壁や浴槽から独立して設置。奥や側面、下部まで手が届きやすく、お手入れが簡単です。
トイレ
美しいアースカラーで貼り分けた石目調壁紙。
モダンで洗練された質感でありながら、あたたかみのあるカラーが魅力的です。
内装
リビングとつながる個室。
奥の扉の向こうはランドリールームへとつながっています。
内装
ワークスペース
その他
ウォークインクローゼット
その他
可動棚
床工事
LIXILのフロアタイル(ラシッサ Dフロア)ライトクレイ調は木質とも相性がよく素材ミックス空間を際立てます。
建具
LDKに隣接する部屋を半透明の間仕切り戸で仕切ると圧迫感もなく視線を遮れます。
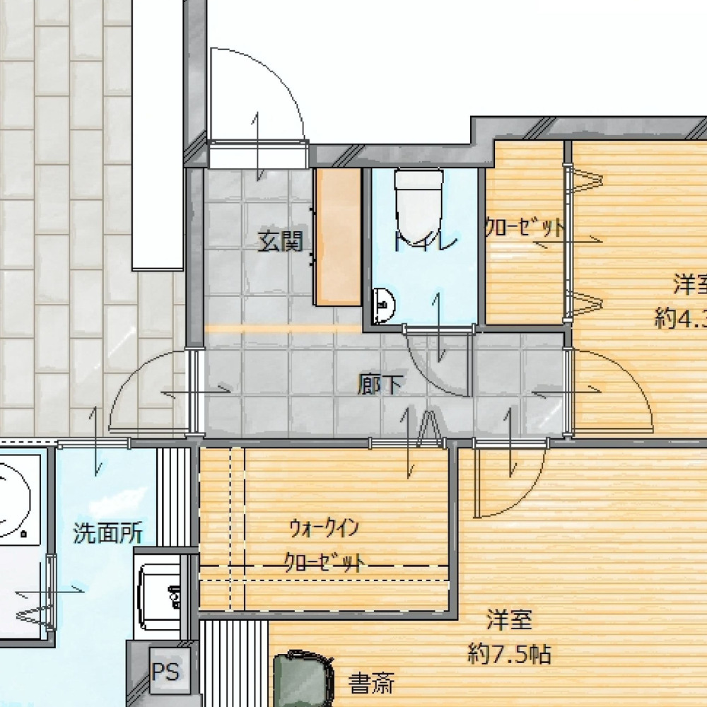
玄関

担当者からお客様へ
リゾート風のLDKで非日常感を、個室は日常使いの落ち着いた空間に。
チェリー柄を中心とした木目調で温かみを、無垢材で高級感を出しました。
窓辺のヌックはテラコッタカラーでアクセントをつけました。
キッチンをアイランド型にして回遊性を向上させ、浴室移動で水回り動線も改善。
パントリーやファミリークローゼットで収納も充実させています。 (担当:永尾 霞)
当初想定していた子育て後のご夫婦だけでなく、若いご夫婦にも好評でした。
充実した収納と回遊動線、リゾート感のある空間が、世代を超えて支持される物件になっています。 (担当:松尾 祐一郎)