福岡市東区 K様邸 戸建てリノベーション
- 福岡市東区 K様邸 戸建てリノベーション内訳 工期1.5ヶ月
福岡市東区 全面改装リフォーム
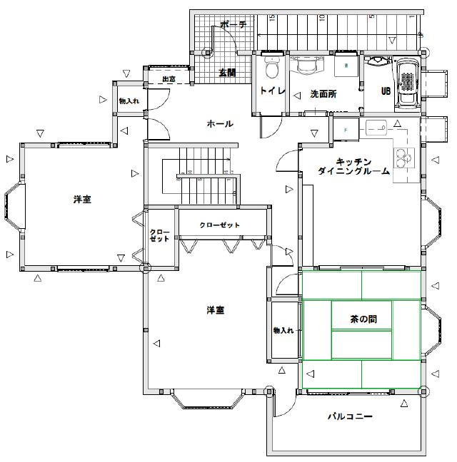
Before 1階図面上 Before 2階図面下
After 1階図面上 After 2階図面下
福岡市東区 K様邸 全面改装リフォーム施工前
今回のリフォームのポイントは? 2階のキッチン・お風呂をなくして、子ども部屋と納戸を造作したことと、 自然素材を使用したことです! K様との一番の思い出は? 珪藻土壁の試し塗りを行い、K様に実際に見ていただいて塗り方や色を決定していったことです。
福岡市東区 K様邸 全面改装リフォーム施工中
福岡市東区 K様邸 全面改装リフォーム施工後
全面改装リフォームをされた K様の声
福岡市東区 K様 全面改装リフォーム 担当:阿部より
今回のリフォームのポイントは? 2階のキッチン・お風呂をなくして、子ども部屋と納戸を造作したことと、 自然素材を使用したことです! K様との一番の思い出は? 珪藻土壁の試し塗りを行い、K様に実際に見ていただいて塗り方や色を決定していったことです。














































